Wij gebruiken cookies om de website naar behoren te laten werken en te analyseren. U gaat akkoord met onze cookies als u onze website blijft gebruiken. Meer info.

Appartement in Torremolinos
770680

Meer informatie?

Hartelijk dank

Uw bericht is naar ons verzonden. Wij nemen zo snel mogelijk contact met u op.

Sorry, we kunnen helaas niet met zekerheid vaststellen of u een mens of een geautomatiseerde bot/spammer bent. Hierdoor kunnen we het formulier dat u heeft ingevuld niet verzenden. Probeer het opnieuw of neem direct contact op met de makelaar via e-mail.

Er is iets mis gegaan met het versturen van het formulier.
Controleer of alle velden (goed) zijn ingevoerd en probeer het nog een keer.

recaptcha
reCAPTCHA
PrivacyTerms

Kenmerken

Prijs
€ 438.000
Status
Beschikbaar
Plaats
Torremolinos
Provincie
Malaga
Soort appartement
Appartement
Woonlaag
Soort bouw
Bestaande bouw
Woonoppervlakte
114m²
Perceeloppervlakte
5.099m²
Aantal slaapkamers
3
Aantal badkamers
2
Voorzieningen
Zwembad

Omschrijving

Ziet u een huis dat niet volledig aan de wensen voldoet? Wij hebben een eigen bouwteam voor verbouwingen. Lees meer

Exclusive Duplex Penthouse near La Carihuela, Torremolinos
We present this exclusive duplex penthouse for sale, located just 300 meters from La Carihuela—one of the most sought-after areas in Torremolinos, renowned for its coastal charm, vibrant atmosphere, and year-round leisure and services. This magnificent property perfectly combines location, space, and functionality. It is an ideal choice for those seeking a seaside residence or for investors looking for high proven profitability, as it holds a valid tourist license.

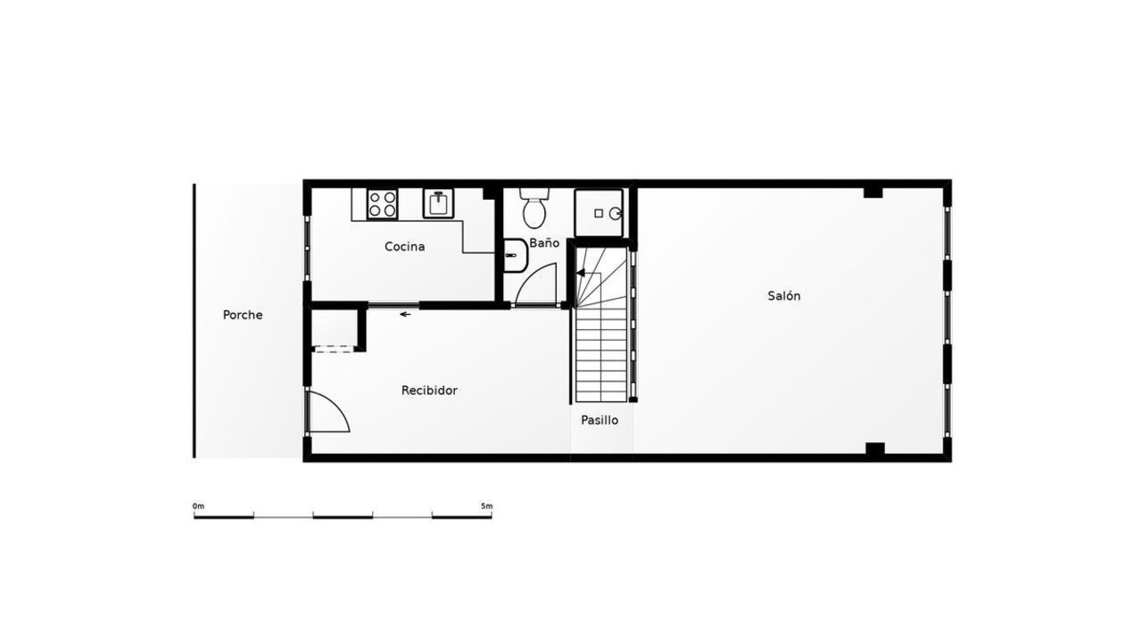
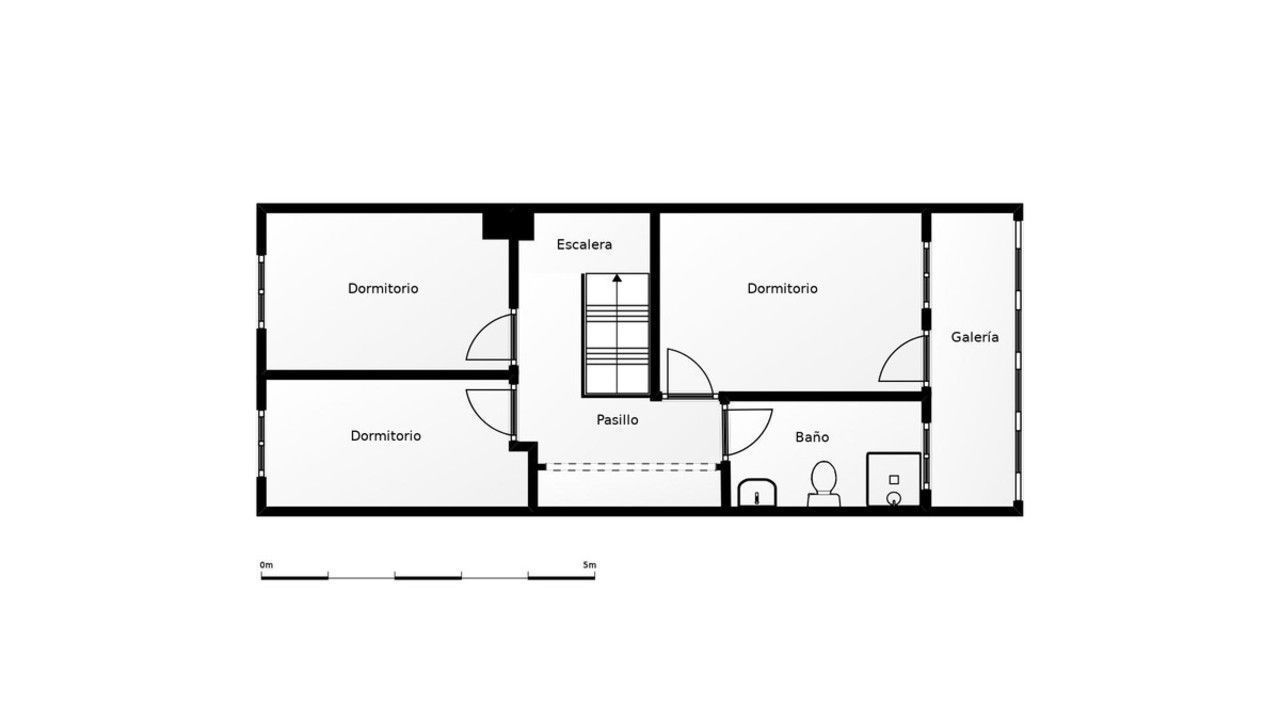
Property Distribution
The property is distributed over two floors, offering bright and well-defined living spaces:

Three generous bedrooms: Perfect for families, guests, or a home office.

Two full bathrooms: Designed for daily comfort and practicality.

Independent kitchen: Spacious and functional, ideal for those who value a dedicated cooking space.

Living Area: A wide and cozy living room that connects to a pleasant private terrace, where you can enjoy sea views and the privileged climate of the Costa del Sol all year long.

Amenities & Surroundings
The home includes a private parking space—a significant value-add in this area—and access to a communal swimming pool, perfect for relaxing during the warmer months. Its immediate surroundings offer supermarkets, restaurants, public transport, and shops just a few minutes' walk away, allowing for a car-free lifestyle.

A Unique Opportunity
In short, this property checks every box: proximity to the beach, sea views, outdoor space, a tourist license, and a strategic location. It is a unique opportunity to acquire a duplex penthouse with great potential in a consolidated area with constant appreciation, where comfort, investment, and quality of life come together.

Legal Notice: In compliance with the Decree of the Junta de Andalucía 218-2005 of October 11, clients are informed that notary fees, registration fees, and I.T.P. (Transfer Tax) are not included in the price. We remind you that, as a consumer, you have the right to be informed and provided with the corresponding informative documentation, as applicable, based on the provisions of Decree 218/05 of October 11, which regulates the Consumer Information Regulations for the purchase, sale, and leasing of housing in Andalusia.

Zorgeloos een huis kopen in Spanje

Dagelijks nieuw aanbod in uw mailbox

Vul uw zoekcriteria in en ontvang dagelijks nieuw aanbod in uw maibox. U kunt zich op ieder moment voor de woningmail afmelden en het is geheel kosteloos.

Aanmelden

Kennismakingsgesprek in Nederland?

Een goede voorbereiding is het halve werk. Wilt u precies weten waar u aan toe bent? Maak dan vrijblijvend een afspraak op ons kantoor in Baarn, voordat u naar Spanje afreist.

Afspraak maken

Bekijk op kaart

LET OP, de Google Maps locatie is bij benadering.

[ { "address": "770680 ", "zipCode": "", "city": "Torremolinos", "lat": 36.621969, "lng": -4.499924, "heading": 0, "pitch": 0 } ]
+

OP DE HOOGTE BLIJVEN?

Vul uw wensen in en ontvang nieuw aanbod in uw mail

Gratis aanmelden