Wij gebruiken cookies om de website naar behoren te laten werken en te analyseren. U gaat akkoord met onze cookies als u onze website blijft gebruiken. Meer info.

Tussenwoning in Riogordo
764797

Meer informatie?

Hartelijk dank

Uw bericht is naar ons verzonden. Wij nemen zo snel mogelijk contact met u op.

Sorry, we kunnen helaas niet met zekerheid vaststellen of u een mens of een geautomatiseerde bot/spammer bent. Hierdoor kunnen we het formulier dat u heeft ingevuld niet verzenden. Probeer het opnieuw of neem direct contact op met de makelaar via e-mail.

Er is iets mis gegaan met het versturen van het formulier.
Controleer of alle velden (goed) zijn ingevoerd en probeer het nog een keer.

recaptcha
reCAPTCHA
PrivacyTerms

Kenmerken

Prijs
€ 295.000
Status
Beschikbaar
Plaats
Riogordo
Provincie
Malaga
Soort woonhuis
Herenhuis, Tussenwoning
Soort bouw
Bestaande bouw
Woonoppervlakte
381m²
Perceeloppervlakte
323m²
Aantal slaapkamers
9
Aantal badkamers
5
Voorzieningen
Zwembad

Omschrijving

Ziet u een huis dat niet volledig aan de wensen voldoet? Wij hebben een eigen bouwteam voor verbouwingen. Lees meer

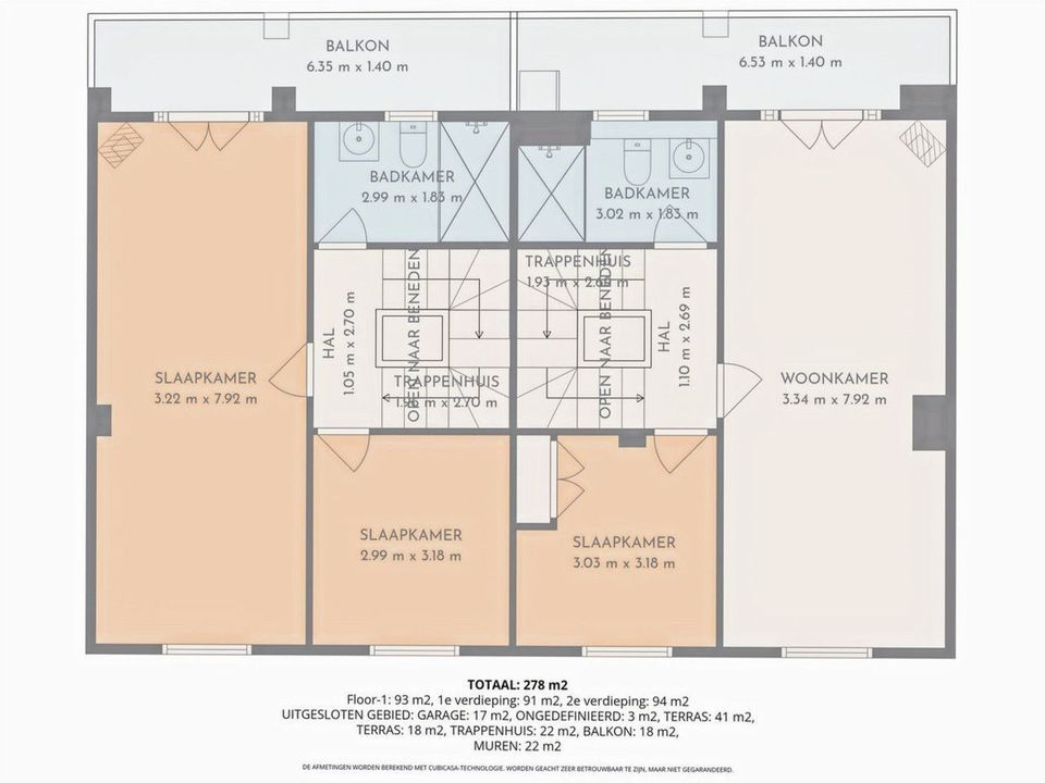
Wij presenteren met trots deze unieke investeringskans in het hart van Riogordo (Málaga): een ruime dorpswoning met een totale bebouwde oppervlakte van 381 m², verdeeld over drie verdiepingen, gelegen op een stedelijk woonperceel van 323 m². De woning is gebouwd in 2005 en juridisch geregistreerd als één geheel zonder horizontale splitsing, wat uitzonderlijke flexibiliteit biedt voor herontwikkeling of herindeling. De constructie is degelijk en de vraagprijs is aantrekkelijk gezien de grootte en ligging, waardoor het pand ideaal is voor een volledige renovatie om de waarde te maximaliseren. Er zijn diverse ontwikkelingsmogelijkheden, zoals het behouden van de huidige indeling als twee ruime woningen met privé buitenruimtes, het ombouwen van de begane grond tot een commerciële ruimte, kantoor of co-workingruimte voor extra huurinkomsten, of het realiseren van twee moderne duplexappartementen met privéterrassen, geschikt voor lange termijn of vakantieverhuur. De eerste verdieping biedt bovendien ruimte voor royale terrassen die kunnen worden verbonden met een gemeenschappelijke tuin aan de achterzijde, wat zorgt voor een zeldzame groene oase in het dorpscentrum. Dankzij de strategische ligging op slechts 35 minuten van Málaga-stad en 30 minuten van de kust bij Torre del Mar, wordt Riogordo steeds aantrekkelijker voor zowel kopers als huurders die betaalbaar willen wonen met goede verbindingen. De foto's tonen ontwerpvoorstellen en indelingsideeën, terwijl de video een 3D-virtuele rondleiding van de huidige structuur biedt. Alle juridische en kadastrale documentatie is volledig in orde. Neem gerust contact met ons op voor meer informatie, gedetailleerde plattegronden of om renovatie- en investeringsmogelijkheden te bespreken.

Zorgeloos een huis kopen in Spanje

Dagelijks nieuw aanbod in uw mailbox

Vul uw zoekcriteria in en ontvang dagelijks nieuw aanbod in uw maibox. U kunt zich op ieder moment voor de woningmail afmelden en het is geheel kosteloos.

Aanmelden

Kennismakingsgesprek in Nederland?

Een goede voorbereiding is het halve werk. Wilt u precies weten waar u aan toe bent? Maak dan vrijblijvend een afspraak op ons kantoor in Baarn, voordat u naar Spanje afreist.

Afspraak maken

Bekijk op kaart

LET OP, de Google Maps locatie is bij benadering.

[ { "address": "764797 ", "zipCode": "", "city": "Riogordo", "lat": 36.91639, "lng": -4.292964, "heading": 0, "pitch": 0 } ]
+

OP DE HOOGTE BLIJVEN?

Vul uw wensen in en ontvang nieuw aanbod in uw mail

Gratis aanmelden