Wij gebruiken cookies om de website naar behoren te laten werken en te analyseren. U gaat akkoord met onze cookies als u onze website blijft gebruiken. Meer info.

Appartement in Marbella
776658

Meer informatie?

Hartelijk dank

Uw bericht is naar ons verzonden. Wij nemen zo snel mogelijk contact met u op.

Sorry, we kunnen helaas niet met zekerheid vaststellen of u een mens of een geautomatiseerde bot/spammer bent. Hierdoor kunnen we het formulier dat u heeft ingevuld niet verzenden. Probeer het opnieuw of neem direct contact op met de makelaar via e-mail.

Er is iets mis gegaan met het versturen van het formulier.
Controleer of alle velden (goed) zijn ingevoerd en probeer het nog een keer.

recaptcha
reCAPTCHA
PrivacyTerms

Kenmerken

Prijs
€ 595.000
Status
Beschikbaar
Plaats
Marbella
Provincie
Malaga
Soort appartement
Appartement
Woonlaag
Soort bouw
Bestaande bouw
Woonoppervlakte
96m²
Aantal slaapkamers
2
Aantal badkamers
2
Voorzieningen
Zwembad

Omschrijving

Ziet u een huis dat niet volledig aan de wensen voldoet? Wij hebben een eigen bouwteam voor verbouwingen. Lees meer

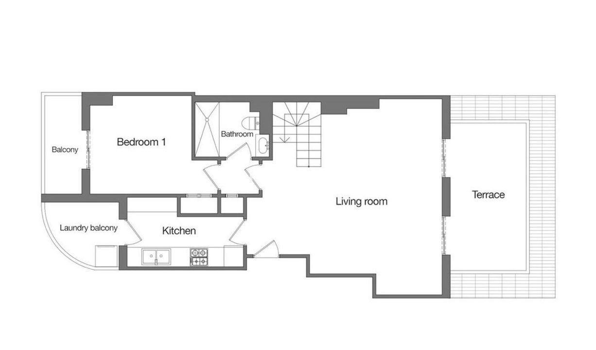
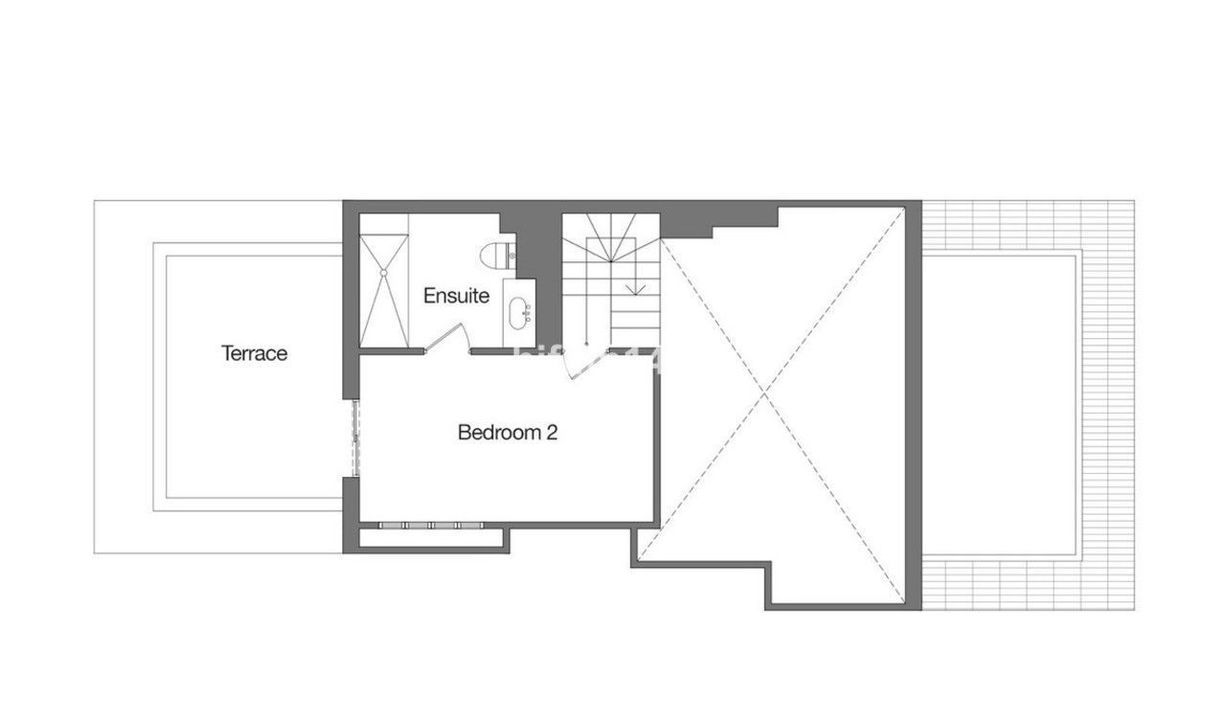
Discover this bright and beautifully presented duplex penthouse in the sought-after Señorío de Aloha, located in the heart of Nueva Andalucía. Positioned on the top floor of a secure, well-maintained community, this property offers an exceptional blend of comfort, privacy, and breathtaking views across the Mediterranean and La Concha mountain.

The apartment features two spacious bedrooms and two modern bathrooms, complemented by a stylish living area designed for both relaxation and entertaining. Recently refurbished, the home presents a fresh, contemporary feel while retaining a warm and inviting atmosphere.

The standout feature is the generous east-facing terrace, offering spectacular panoramic views and abundant morning sunshine. It's an ideal setting for al fresco breakfasts or evening drinks, making the most of Marbella's outdoor lifestyle.

The kitchen maintains its charming Andalusian character while providing full functionality—perfect for everything from casual breakfasts to relaxed dinners with family and friends.

Residents of Señorío de Aloha enjoy access to three beautifully landscaped swimming pool areas surrounded by tropical gardens, as well as a padel court for an active lifestyle.

The property also includes private parking.

Ideally located in Nueva Andalucía, the penthouse is within walking distance of Centro Plaza and a large supermarket, and just minutes from golf courses, sandy beaches, and the vibrant marina of Puerto Banús.

This is a rare opportunity to acquire a stylish penthouse in Señorío de Aloha, Nueva Andalucía—perfect as a permanent residence, holiday home, or investment property in one of Marbella's most desirable locations.

Zorgeloos een huis kopen in Spanje

Dagelijks nieuw aanbod in uw mailbox

Vul uw zoekcriteria in en ontvang dagelijks nieuw aanbod in uw maibox. U kunt zich op ieder moment voor de woningmail afmelden en het is geheel kosteloos.

Aanmelden

Kennismakingsgesprek in Nederland?

Een goede voorbereiding is het halve werk. Wilt u precies weten waar u aan toe bent? Maak dan vrijblijvend een afspraak op ons kantoor in Baarn, voordat u naar Spanje afreist.

Afspraak maken

Bekijk op kaart

LET OP, de Google Maps locatie is bij benadering.

[ { "address": "776658 ", "zipCode": "", "city": "Marbella", "lat": 36.510283, "lng": -4.885258, "heading": 0, "pitch": 0 } ]
+

OP DE HOOGTE BLIJVEN?

Vul uw wensen in en ontvang nieuw aanbod in uw mail

Gratis aanmelden