Wij gebruiken cookies om de website naar behoren te laten werken en te analyseren. U gaat akkoord met onze cookies als u onze website blijft gebruiken. Meer info.

Bouwgrond in Javea
749000

Meer informatie?

Hartelijk dank

Uw bericht is naar ons verzonden. Wij nemen zo snel mogelijk contact met u op.

Sorry, we kunnen helaas niet met zekerheid vaststellen of u een mens of een geautomatiseerde bot/spammer bent. Hierdoor kunnen we het formulier dat u heeft ingevuld niet verzenden. Probeer het opnieuw of neem direct contact op met de makelaar via e-mail.

Er is iets mis gegaan met het versturen van het formulier.
Controleer of alle velden (goed) zijn ingevoerd en probeer het nog een keer.

recaptcha
reCAPTCHA
PrivacyTerms

Kenmerken

Prijs
€ 360.000
Status
Beschikbaar
Plaats
Javea
Provincie
Alicante
Soort bouw
Bestaande bouw
Perceeloppervlakte
889m²

Omschrijving

Ziet u een huis dat niet volledig aan de wensen voldoet? Wij hebben een eigen bouwteam voor verbouwingen. Lees meer

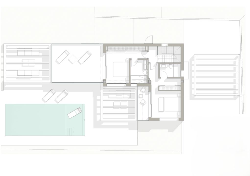
Plot for Sale in Pinosol, Jávea – APPROVED LICENCE for 3-bedroom villa with option to extend to 4 bedrooms. Flat, sunny, east/west-orientated 889 m² plot with a licence already approved to build a modern 3-bedroom villa, situated in Pinosol on a quiet road, just a 3-minute drive from the sandy Arenal beach in Jávea on the Costa Blanca. There is no need to wait for Town Hall approvals, as the licence has already been granted and the project is ready to go. Applications for water, mains drainage, and electricity connections are already in process. As the plot is flat, fenced on three sides, and has a pedestrianised frontage, the cost to initiate construction is minimal. The plot is not tied to a specific builder, giving you complete freedom of choice. We can recommend excellent local builders if required. The current licence allows for the construction of a modern, two-storey 177 m² villa with three bedrooms, all with en-suite bathrooms, an open-plan living/dining/kitchen area, a utility room, a ground-floor cloakroom, and a machine room. Plans are also available to extend the project with the addition of a sótano (lower level) to create a fourth bedroom, bathroom, and gym/cinema room, subject to an easy approval process with the Town Hall. Outside, there are open terraces leading to a low-maintenance Mediterranean garden with a 10 x 4 m swimming pool and a carport for two cars. The photos show that the villa will enjoy stunning views of the Montgó and is nestled within a quiet, safe residential area within walking distance of amenities. Pinosol is one of the most popular residential areas in Jávea due to its wide, well-maintained streets, nearby restaurants, and easy cycle or drive access to the Arenal with its wonderful sunny beach and abundant amenities. Being home to the best international schools on the Costa Blanca and benefiting from one of the healthiest microclimates in Spain, Jávea is the perfect location for families seeking permanent living or for discerning buyers looking for a luxury holiday home. The price of the plot is very attractive, as the vendor has already paid most of the planning costs and taxes and can provide a valid licence for immediate construction. This plot will not stay on the market for long, so please contact us for more information or to book a viewing.

Zorgeloos een huis kopen in Spanje

Dagelijks nieuw aanbod in uw mailbox

Vul uw zoekcriteria in en ontvang dagelijks nieuw aanbod in uw maibox. U kunt zich op ieder moment voor de woningmail afmelden en het is geheel kosteloos.

Aanmelden

Kennismakingsgesprek in Nederland?

Een goede voorbereiding is het halve werk. Wilt u precies weten waar u aan toe bent? Maak dan vrijblijvend een afspraak op ons kantoor in Baarn, voordat u naar Spanje afreist.

Afspraak maken

Bekijk op kaart

LET OP, de Google Maps locatie is bij benadering.

[ { "address": "749000 ", "zipCode": "", "city": "Javea", "lat": 38.788913, "lng": 0.166057, "heading": 0, "pitch": 0 } ]
+

OP DE HOOGTE BLIJVEN?

Vul uw wensen in en ontvang nieuw aanbod in uw mail

Gratis aanmelden