Wij gebruiken cookies om de website naar behoren te laten werken en te analyseren. U gaat akkoord met onze cookies als u onze website blijft gebruiken. Meer info.

Appartement in Fuengirola
768194

Meer informatie?

Hartelijk dank

Uw bericht is naar ons verzonden. Wij nemen zo snel mogelijk contact met u op.

Sorry, we kunnen helaas niet met zekerheid vaststellen of u een mens of een geautomatiseerde bot/spammer bent. Hierdoor kunnen we het formulier dat u heeft ingevuld niet verzenden. Probeer het opnieuw of neem direct contact op met de makelaar via e-mail.

Er is iets mis gegaan met het versturen van het formulier.
Controleer of alle velden (goed) zijn ingevoerd en probeer het nog een keer.

recaptcha
reCAPTCHA
PrivacyTerms

Kenmerken

Prijs
€ 299.000
Status
Beschikbaar
Plaats
Fuengirola
Provincie
Malaga
Soort appartement
Appartement
Woonlaag
Soort bouw
Bestaande bouw
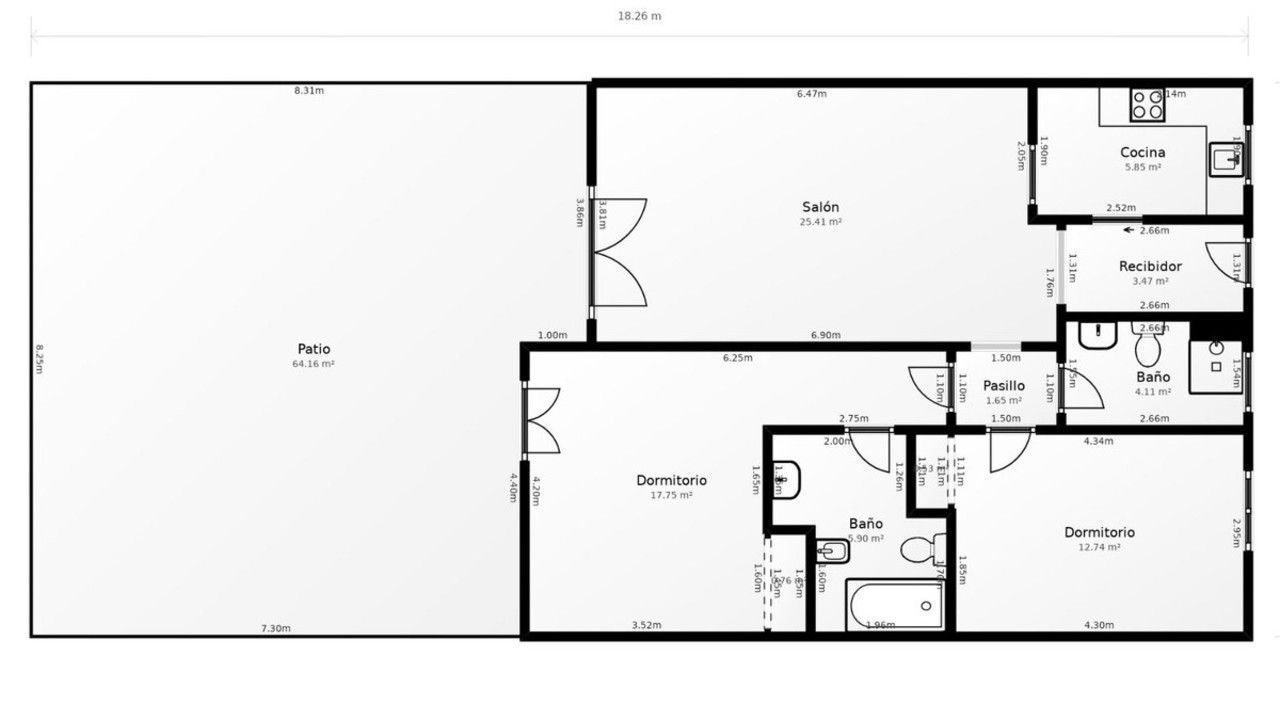
Woonoppervlakte
79m²
Aantal slaapkamers
2
Aantal badkamers
2
Voorzieningen
Zwembad

Omschrijving

Ziet u een huis dat niet volledig aan de wensen voldoet? Wij hebben een eigen bouwteam voor verbouwingen. Lees meer

Your Private Oasis in Torreblanca! Ground Floor with Garden, Pool & Gym
Are you looking for a blank canvas to design your dream home or a smart investment on the Costa del Sol? This spectacular ground-floor apartment in Torreblanca combines the convenience of a modern flat with the freedom of a house, thanks to its impressive outdoor space.

What makes this property special:
Private Outdoor Space: The heart of the home is the 11.82 m² covered porch that leads directly to a 42.68 m² private garden. Imagine your mornings having breakfast in the sun or summer nights with friends and a BBQ.

Smart Layout: The 78.67 m² built area is perfectly utilized:

Bright and spacious living-dining room with garden access.

2 exterior bedrooms (the master bedroom features an en-suite bathroom for total privacy).

2 full bathrooms in total.

Independent kitchen and entrance hall.

Extras: Forget about searching for parking. The price includes a covered garage space and a storage room.

Community Areas: The complex features a communal swimming pool to cool off and a fully equipped gym to stay fit without leaving home.

A Blank Canvas (Virtual Home Staging)
To help you visualize the incredible potential of this home, we have included photos with AI digital furnishing.

Important Note: The property is sold completely empty, and the kitchen is currently uninstalled. This is the perfect opportunity to design it exactly to your taste, using the materials you've always wanted.

Technical Details:

Surface area: 78.67 m² built.
Outdoor space: Porch (11.82 m²) + Garden (42.68 m²).
Extras: Garage, Storage Room, Pool, and Gym.
Condition: Ready for customization (no kitchen or furniture included).

Zorgeloos een huis kopen in Spanje

Dagelijks nieuw aanbod in uw mailbox

Vul uw zoekcriteria in en ontvang dagelijks nieuw aanbod in uw maibox. U kunt zich op ieder moment voor de woningmail afmelden en het is geheel kosteloos.

Aanmelden

Kennismakingsgesprek in Nederland?

Een goede voorbereiding is het halve werk. Wilt u precies weten waar u aan toe bent? Maak dan vrijblijvend een afspraak op ons kantoor in Baarn, voordat u naar Spanje afreist.

Afspraak maken

Bekijk op kaart

LET OP, de Google Maps locatie is bij benadering.

[ { "address": "768194 ", "zipCode": "", "city": "Fuengirola", "lat": 36.54211, "lng": -4.623873, "heading": 0, "pitch": 0 } ]
+

OP DE HOOGTE BLIJVEN?

Vul uw wensen in en ontvang nieuw aanbod in uw mail

Gratis aanmelden