Wij gebruiken cookies om de website naar behoren te laten werken en te analyseren. U gaat akkoord met onze cookies als u onze website blijft gebruiken. Meer info.

Appartement in Estepona
760648

Meer informatie?

Hartelijk dank

Uw bericht is naar ons verzonden. Wij nemen zo snel mogelijk contact met u op.

Sorry, we kunnen helaas niet met zekerheid vaststellen of u een mens of een geautomatiseerde bot/spammer bent. Hierdoor kunnen we het formulier dat u heeft ingevuld niet verzenden. Probeer het opnieuw of neem direct contact op met de makelaar via e-mail.

Er is iets mis gegaan met het versturen van het formulier.
Controleer of alle velden (goed) zijn ingevoerd en probeer het nog een keer.

recaptcha
reCAPTCHA
PrivacyTerms

Kenmerken

Prijs
€ 375.000
Status
Beschikbaar
Plaats
Estepona
Provincie
Malaga
Soort appartement
Appartement
Woonlaag
Soort bouw
Bestaande bouw
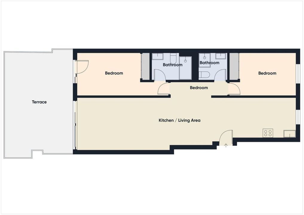
Woonoppervlakte
72m²
Aantal slaapkamers
2
Aantal badkamers
2
Voorzieningen
Zwembad

Omschrijving

Ziet u een huis dat niet volledig aan de wensen voldoet? Wij hebben een eigen bouwteam voor verbouwingen. Lees meer

Modern 2-Bedroom Ground Floor Apartment – Sunny Golf, Estepona

Located within the newly completed Sunny Golf development in Estepona, this 2-bedroom, 2-bathroom ground floor apartment combines contemporary design with the relaxed Andalusian lifestyle. Set in a secure gated community surrounded by golf courses and natural beauty, the property offers a peaceful yet well-connected location just a short drive from beaches, shops, and the vibrant heart of Estepona town.
Completed in 2024, the apartment enjoys a bright and spacious open-plan layout, featuring a generous living and dining area that flows seamlessly onto a private terrace with garden and mountain views. With its southwest orientation, the property benefits from sunshine throughout the afternoon and spectacular sunsets over the surrounding hills.

Key features include:
2 spacious bedrooms and 2 modern bathrooms
Open-plan kitchen and living area with abundant natural light
Private terrace ideal for outdoor dining and relaxation
Communal swimming pool set within beautifully landscaped gardens overlooking the golf course
Secure gated community with modern infrastructure and contemporary design
Designated parking space included

Perfect as a holiday home, permanent residence, or investment property, this stylish apartment offers all the comforts of modern living within a quiet and well-maintained community.
With its desirable orientation, peaceful views, and brand-new construction, this property represents an excellent opportunity to enjoy modern Mediterranean living in one of Estepona's most up-and-coming residential areas.

Book a viewing now, keys are in office.

Zorgeloos een huis kopen in Spanje

Dagelijks nieuw aanbod in uw mailbox

Vul uw zoekcriteria in en ontvang dagelijks nieuw aanbod in uw maibox. U kunt zich op ieder moment voor de woningmail afmelden en het is geheel kosteloos.

Aanmelden

Kennismakingsgesprek in Nederland?

Een goede voorbereiding is het halve werk. Wilt u precies weten waar u aan toe bent? Maak dan vrijblijvend een afspraak op ons kantoor in Baarn, voordat u naar Spanje afreist.

Afspraak maken

Bekijk op kaart

LET OP, de Google Maps locatie is bij benadering.

[ { "address": "760648 ", "zipCode": "", "city": "Estepona", "lat": 36.425635, "lng": -5.151026, "heading": 0, "pitch": 0 } ]
+

OP DE HOOGTE BLIJVEN?

Vul uw wensen in en ontvang nieuw aanbod in uw mail

Gratis aanmelden