Wij gebruiken cookies om de website naar behoren te laten werken en te analyseren. U gaat akkoord met onze cookies als u onze website blijft gebruiken. Meer info.

Appartement in Benahavis
767049

Meer informatie?

Hartelijk dank

Uw bericht is naar ons verzonden. Wij nemen zo snel mogelijk contact met u op.

Sorry, we kunnen helaas niet met zekerheid vaststellen of u een mens of een geautomatiseerde bot/spammer bent. Hierdoor kunnen we het formulier dat u heeft ingevuld niet verzenden. Probeer het opnieuw of neem direct contact op met de makelaar via e-mail.

Er is iets mis gegaan met het versturen van het formulier.
Controleer of alle velden (goed) zijn ingevoerd en probeer het nog een keer.

recaptcha
reCAPTCHA
PrivacyTerms

Kenmerken

Prijs
€ 425.000
Status
Beschikbaar
Plaats
Benahavis
Provincie
Malaga
Soort appartement
Appartement
Woonlaag
Soort bouw
Bestaande bouw
Woonoppervlakte
97m²
Aantal slaapkamers
2
Aantal badkamers
2
Voorzieningen
Zwembad

Omschrijving

Ziet u een huis dat niet volledig aan de wensen voldoet? Wij hebben een eigen bouwteam voor verbouwingen. Lees meer

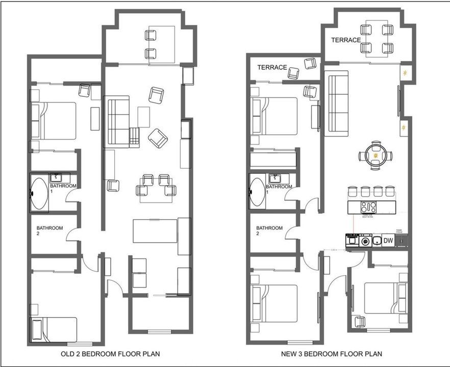
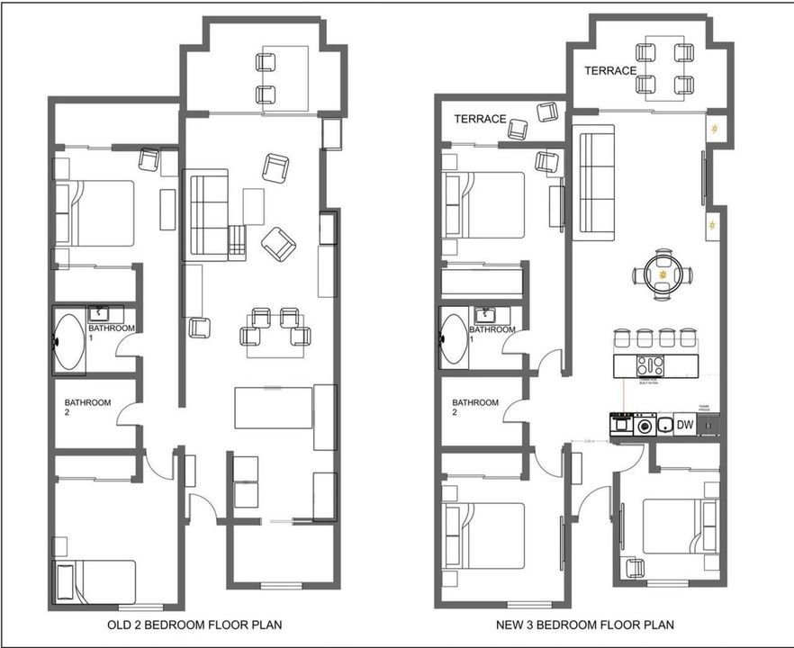
2-Bedroom Apartment with Panoramic Sea Views and 3-Bedroom Conversion Potential – Puerto del Almendro, Los Arqueros

Set in an elevated position within the sought-after community of Puerto del Almendro in Los Arqueros, this bright two-bedroom apartment enjoys breathtaking panoramic sea views stretching across the Mediterranean coastline. The urbanisation is renowned for its beautifully maintained gardens and one of the most charming pool areas in the area, offering stunning sea views and a peaceful atmosphere.

Inside, the apartment is filled with natural light and offers a comfortable layout that is ready to move into immediately, while also presenting an excellent renovation opportunity for buyers looking to personalise the space.

The property features:
✔ 2 spacious bedrooms
✔ 2 en-suite bathrooms
✔ Bright living and dining area
✔ Fully fitted kitchen
✔ Air conditioning (hot & cold)
✔ Two independent private terraces, each with a unique orientation and spectacular sea views
✔ Step-free access for added convenience

The dual terraces are a standout feature, allowing you to enjoy sunshine throughout the day while taking in uninterrupted panoramic sea views from different perspectives.

In addition to being a comfortable home as it stands, the apartment also offers excellent potential for renovation and reconfiguration. With the appropriate redesign, the property can potentially be converted into a 3-bedroom apartment, creating additional value and flexibility for future owners. Concept plans illustrating this 3-bedroom conversion are included in the photo gallery.

Located just minutes from San Pedro, Puerto Banús, golf courses, international schools, and all amenities, this property offers the perfect balance between tranquility and accessibility.

Whether you are looking for:
✔ A permanent residence
✔ A luxury second home
✔ A superb renovation project with strong value potential
✔ Or a high-demand investment in Benahavís

The perfect blend of existing value and future potential, in one of the most sought-after communities on the Costa del Sol.

Contact us today for more details!

Zorgeloos een huis kopen in Spanje

Dagelijks nieuw aanbod in uw mailbox

Vul uw zoekcriteria in en ontvang dagelijks nieuw aanbod in uw maibox. U kunt zich op ieder moment voor de woningmail afmelden en het is geheel kosteloos.

Aanmelden

Kennismakingsgesprek in Nederland?

Een goede voorbereiding is het halve werk. Wilt u precies weten waar u aan toe bent? Maak dan vrijblijvend een afspraak op ons kantoor in Baarn, voordat u naar Spanje afreist.

Afspraak maken

Bekijk op kaart

LET OP, de Google Maps locatie is bij benadering.

[ { "address": "767049 ", "zipCode": "", "city": "Benahavis", "lat": 36.520489, "lng": -5.045558, "heading": 0, "pitch": 0 } ]
+

OP DE HOOGTE BLIJVEN?

Vul uw wensen in en ontvang nieuw aanbod in uw mail

Gratis aanmelden